Wielokondygnacyjne budynki żelbetowe wykonywane są jako średniowysokie (rys.1), ale coraz częściej wypierają konstrukcję stalową w budynkach wysokich i wysokościowcach (np. rys.2). Szczególnie w wysokich budynkach istotna jest stateczność przestrzenna, a przede wszystkim skrętna, to znaczy stateczność kształtu w planie.
Wprowadzenie
Przykłady ukształtowania elementów budynku w celu zachowania stateczności w planie, pokazano na rys. 3, z których 3 f,g,i,j,k, l są rozwiązaniami błędnymi z warunku stateczności przestrzennej budynku.

Rys.1 Model konstrukcji żelbetowego budynku [1]

Rys.2.Wieżowiec żelbetowy Comopolitan Twarda w Warszawie, (44 piętra i 160 m) [2]

Rys.3 Kształtowanie elementów stateczności w planie budynku: a) ściany zewnętrzne – dobrze, b) możliwe skręcenia skrępowane budynku, c) konstrukcyjnie możliwe, d) plan wielokątny – dobrze, e) dobrze, jeśli trzon jest wystraczająco sztywny, f), g) źle , ponieważ extra ściana jest umieszczone niesymetrycznie, h)możliwe, ale wymaga sprawdzenia, i), j) żale – brak sztywności na skręcanie, k) mała sztywność przestrzenna w kierunku podłużnym, l) nie zalecane ze względu na nierównoimienną sztywność na skręcanie [3]
Wymuszenia utraty stateczności budynku
Oddziaływanie wiatru
Oddziaływanie wiatru stanowi podstawowe obciążenie zmienne budynków wysokich, przy czym istotna jest nie tylko zmienność po wysokości, ale również niesymetryczne obciążenia w planie, prowadzące do dynamicznego skręcania budynku.
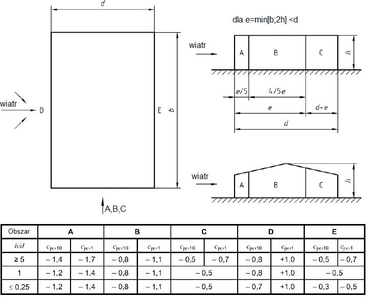
Rozkład wiatru po wysokości można przyjmować zgodnie z rys. 4. Rozróżnia się dwa przypadki zależnie od stosunku wysokości $h$ do jego szerokości $b$. W każdym z nich – przy podstawie budynku do wysokości równej szerokości b przyjmuje się stałe oddziaływanie równe obciążeniu na wysokości b. W pierwszym przypadku na pozostałej powyżej, a w drugim przypadku tylko przy wierzchołku na wysokości równej $b$ przyjmuje się przyjmuje się stałe oddziaływanie równe obciążeniu na wysokości h. W odcinku pośrednim dla drugiego przypadku obciążenia stopniuje się plasterkami o grubości $h_j$. Wiatr działa na wszystkie ściany jednocześnie, tak jak pokazano na rys. 5 Dla budynku wysokiego zaleca się przyjmować współczynnik ciśnienia $C_{pe,10}$ na powierzchnię referencyjna 10 m2, a nie $C_{pe,1}$

Rys.4 Oddziaływanie wiatru po wysokości budynku wysokiego: a) budynek o wysokości h:$b<h \le 2b$, b)$h \ge 2b$ (b- szerokość ściany nawietrznej) [4]

Rys.5 Oddziaływanie wiatru w planie budynku [4]
Oddziaływania temperatury
W przypadku budynków wysokich oddziaływania temperatury są równie ważne jak działanie wiatru. Mogą one bowiem spowodować znaczne wychylenia wierzchołka budynku, co istotnie zwiększa siły w budynku liczone z uwzględnieniem efektu $P-\Delta$, a także powoduje trudności w geodezyjnym tyczeniu pionowości budynku. Zmiany termiczne następują nie tylko wraz ze zmianami pór roku, ale częściej wraz ze zmianami pór dnia i nasłonecznienia poszczególnych ścian budynku. Zmiany termiczne mogą również prowadzić do skręcania budynku, co pokazano na rys. 3b.
Dla elementów chronionych przed zmianami temperatury, jak to ma miejsce w przypadku stropów i słupów wewnętrznych w termicznie izolowanych budynkach, średnie wahania temperatur max może być w uproszczeniu przyjęty:
$\Delta T = \pm 7,5 deg$.
Specjalną uwagę należy zwrócić na działanie temperatury na zewnętrzne elementy (np płyty parkingów). Współczynnik rozszerzalności termicznej dla zwykłych konstrukcji żelbetowych mozna przyjmować o wartości
$\alpha_t = 0,8 \cdot 10^{-5} \frac {1}{deg} $.
Wpływy termiczne należy uwzględniać w sposób pokazany w normie [5].
Obciążenia od imperfekcji
Obciążenia od imperfekcji, wywołane głównie niedoskonałościami systemowymi (przechyłowymi) są równie ważne jak oddziaływanie wiatru i temperatury i nie może być pominięte w analizie budynków wysokich, w tym żelbetowych.
Na rys. 6 pokazano istotę problemu imperfekcji przechyłowych. Na skutek przechyłu budynku o kąt $\alpha_{a1}$ , który dla wysokich budynków należy przyjmować o wartości podstawowej
| $\alpha_1 = \frac{1}{200}$, | (1) |
Współczynnik imperfekcji można zredukować ze względu na liczbę słupów n wbudowanych na jednej kondygnacji
| $ \alpha_n= \sqrt{\frac{n+1}{2n}}$, | (2) |
Ostatecznie
| $\Delta H_j=\alpha_1 \cdot \alpha_n \cdot V_j$. | (3) |
Analogicznie jak w konstrukcjach stalowych [6] $V_j$ oznacza dowolne obciążenie pionowe, zarówno stałe jak zmienne, skupione jak i rozłożone.
Analiza stateczności budynku
Założenia
Analizę stateczności budynku należy prowadzić w modelu 3D konstrukcji, w którym należy prawidłowo zamodelować słupy oraz trzony usztywniające oraz ściany nośne. Zaleca się, by płyty stropowe modelować jako przepony (jako poziome tarcze: sztywne zgięciowo i odkształcalne osiowo), po to by zbędnie nie rozbudowywać rozmiaru zadania, co może prowadzić do utraty istotnych cech obiektu. Płyty stropowe zwykle analizuje się odrębnie już po zaprojektowaniu budynku w ramach rutynowych i mniej odpowiedzialnych zadań. Zleca się też, by trzony windowe, szachty instalacyjne i klatki schodowe wprowadzić do modelu jako uogólnione pręty (cienkościenne o przekroju zamkniętym)
Elementy prętowe: słupy, podciągi, trzony powinny mieć określone charakterystyki geometryczne:
- giętne i osiowe : $A$, $EI_y$, $EI_z$
- ścinania: $GA_{sy}$, $GA_{sz}$
- skręcania swobodnego: Sr. Venant $G I_T$ i Bredta $G I_b$
- skręcania skrępowanego (sztywność giętno skrętna) $EI_{\omega}$
$A_{sy}$ i $A_{sz}$ są polami przekroju ścinania: $\cfrac{1}{A_s}=\int \limits_A (\frac{\tau}{Q})^2dA$ i dla przekroju prostotkąnego wynosi $A_s=\frac{5}{6}A$ (całkowite pole przekroju).
Zagadnienie przekrojów cienkościennych omówiono w artykule Pręty cienkościenne.
Sztywność budynku i elementów
Konstrukcja nośna budynku jest złożona ze słupów, ścian i trzonów o zamkniętym , otwartym lub quasi-zamkniętym konturze, które są różnie ulokowane na planie budynku, np tak jak pokazano na rys. 7.

Rys.7. Układ elementów nośnych w skręcanym budynku: a)skręcanie momentem $M_T$ powoduje skręcenie o kąt $\Theta$, b) odkształcony budynek, c) plan budynku złożony z m – pionowych elementów (słupów i ścian), które układają się w kontury zamknięte lub otwarte [7]
Ponieważ zachodzi pełna analogia pomiędzy skręcaniem pręta cienkościennego Vlasova (uogólnionego pręta) ze zginaniem pręta złożonego i pracą układu nośnego budynku (rys.7), co szczegółów pokazał [7], więc zastosujemy metodę analityczno-numeryczną, polegającą na tym, że będziemy prowadzić numeryczną analizę przestrzennego szkieletu budynku, złożonego z prętów i sztywnych tarcz stropowych. trzony zastąpimy uogólnionymi prętami, a ściany stężonymi ramami.
Rama zastępcza dla wyodrębnionej ściany
Sposób doboru sztywności zastępczej ramy przedstawiono na rys. 8.
Ramę zastępczą dobieramy w rozwiązaniu zadania zstępczego z warunku równości ugięć sprężystych pod poziomym obciążeniem P (dowolnym) ściany $f$ i ramy $f*$.
Wstępnie można przyjąć, że $ f=\cfrac{P\cdot h}{G \cdot l \cdot t}$,
gdzie: t – grubość ściany, G- moduł Kirchoffa żelbetu.
Ponieważ w zastępczej ramie wystąpi moduł Younga E, więc potrzebna będzie tylko znajomość zależności $E=2,4 \cdot G$.
Dobór prętów ramy zastępczej dokonać w analizach numerycznych liniowo-sprężystych I rzędu bez uwzględnienia zjawisk niestateczności.
Rama zastępcza dla ściany z otworami
Dobór zastępczej ramy dla ściany z otworami polega na numerycznym rozwiązaniu zadania pomocniczego: dobrać pręty ramy zastępczej tak, by pod obciążeniem poziomym $q$ przemieszczenia ramy były zgodne z przemieszczeniami traczy-ściany z otworami (rys.9). Wymaga się by zgodność dotyczyła przemieszczeń $f_1$ i $f_2$ na dwóch poziomach, na przykład dla $h_1=h$ i $h_2= h/2$. Ze względu na powszechną dostępność programów obliczeniowych oraz wiele zmiennych parametrów, które można kontrolować – nie podaje się wzorów analitycznych.
Pręt zastępczy dla trzonu usztywniającego
Na rys. 1o przedstawiono trzy przypadki najczęściej spotykanych trzonów usztywniających budynek.

Rys.10 Trzony usztywniające: a) otwarty przekrój (dwa układy C), b) przekrój quasi-zamknięty ( z otworami), c) przekrój zamknięty
Sztywność na skręcanie wyznacza się dla przypadku obciążenia momentem skręcającym $M_T$. Najmniejszą sztywność ma przekrój otwarty rys. 10a, a największą zamknięty rys. 10c. Charakterystyki trzonu o przekroju zamkniętym można obliczyć wg zależności podanych w artykule
Skręcanie pręta o przekroju zamkniętym,
a o przekroju otwartym w artykułach:
Skręcanie swobodne pręta cienkościennego,
Skręcanie nieswobodne (skrępowane),
Współrzędna wycinkowa przekroju pręta cienkościennego.
Dla trzonu 10c, o polu zamkniętym wewnątrz linii środkowych $\Omega$ oraz długościach i grubościach ścianek $ l_i$, $t_i$ moment bezwładności czystego skręcania (Bredta) $I_v$ wynosi:
| $I_v= \cfrac {(2\Omega)^2}{\sum \limits_i \frac {l_i}{t_i}}$. | (4) |
W przypadku przekroju quasi-zamkniętego z niektórymi ściankami z otworami, należy oszacować ich grubości zastępcze $t_i^*$, prowadząc procedurę analogiczną do pokazanej na rys. 9, ale zamiast ramy zastępczej wprowadzamy ścianę zastępczą bez otworów.
Natomiast w przypadku przekroju otwartego można pominąć jego sztywność skrętną i każdą ścianę zastąpić ramą zgodnie z rys.8.
Analiza numeryczna i przykłady
Sztywność budynku, w tym jego sztywność skrętna po wprowadzeniu elementów zastępczych jest modelowana w modelu prętowym przestrzennej ramy 3D. Kontury zamknięte utworzone przez ściany w sposób pokazany na rys. 7, stanowią o sztywności przestrzennej, w tym skrętnej budynku. Nie trzeba ich analizować w sposób specjalny (np pokazany w pracy [7]), bo wprowadzenie układu ścian lub ram zastępczych (pkt 2.2.1.) do przestrzennego modelu komputerowego 3D jest wystarczające.
Uwaga o stateczności budynków wysokich
Stateczność ogólna budynków wysokich posadowionych na sprężystym podłożu omówiono w artykule Stateczność wysokich budowli. Pokazano, że w zagadnieniu można zdefiniować siłę krytyczną, po przekroczeniu, której system konstrukcyjne jest niestabilny.
- Literatura
- Chodor L. (2011), Kształcenie inżyniera budownictwa oraz architekta w nowej technologii inteligentnych systemów komputerowych BIM – 3D+. III Ogólnopolska Konferencja dydaktyczno-naukowa “ Kształcenie na kierunku budownictwo,”, Kielce
- Wikipedia. (2016), Cosmopolitan Twarda 2/4 [ https://pl.wikipedia.org/w/index.php?title=Cosmopolitan_Twarda_2/4&oldid=44962724 ]
- Bachmann H., Steinle A. (2011), Precast concrete structures. Ernst & Sohn : John Wiley & Sons, Inc.
- Schroeter, H. (2005). Die neue Windlast norm DIN 1055-4. SOFiSTiK Seminar 2005
- PN-EN 1991-1-5:2005, Eurokod 1: Oddziaływania na konstrukcje, Część 1-5: Oddziaływania ogólne. Oddziaływania termiczne
- PN-EN 1993-1-1+A1:2006, Eurokod 3. Projektowanie konstrukcji stalowych, Część 1-1: Reguły ogólne i reguły dla budynków
- Drozdov, P. F. (1977). Konstruirovanie i rascet nesushchich sistem mnogoetaznych zdanij i ich elementov. Strojizdat
________________________________







